Klassifiseringer
Ytelse på dørens egenskaper er testet av RISE (tidligere SP) og sertifisert av SBSC. Skuddsikkerhet er testet av Nammo Vanäsverken AB og eksplosjonsbeskyttelsen fra Fraunhofer Institut Freiburg. RISE og SBSC gjennomføre regelmessige produksjonskontroller Dalocs fabrikker
Innbruddsbeskyttelse: EN 1627 RC 5. För RC 6, se Daloc S96
Døren er godkjent for utadslående montasje, hengsleside = angrepsside.
EMI-demping: EMI-C som tillegg.
Kontakt Daloc angående utførelse og utrustning på S95 med EMI-beskyttelse.
Skuddsikkerhet: EN 1522 klasse FB 6 som tillegg.
Eksplosjonsbeskyttelse: EN 13123-1 klasse EPR 2-4 som tillegg.
Døren er godkjent for utadslående montasje, hengsleside = angrepsside.
Øvrig: Ytterdørsutførelse (Y95) er CE-merket i henhold til produktstandard for dører EN 14351-1. CE-merket bak på dørbladet viser følgende egenskaper, testet av RISE:
* No performance determined
Korrosjonsklasse: EN 12944-2 C1-C4 og C5-I.
S95 kan mot bestilling grunnbehandles med sinkepoxy opp til korrosivitetsklasse C5-I – ASI.05 i henhold til EN ISO 12944-5:2007.
Innbruddsbeskyttelse: EN 1627 RC 5. För RC 6, se Daloc S96
Døren er godkjent for utadslående montasje, hengsleside = angrepsside.
EMI-demping: EMI-C som tillegg.
Kontakt Daloc angående utførelse og utrustning på S95 med EMI-beskyttelse.
Skuddsikkerhet: EN 1522 klasse FB 6 som tillegg.
Eksplosjonsbeskyttelse: EN 13123-1 klasse EPR 2-4 som tillegg.
Døren er godkjent for utadslående montasje, hengsleside = angrepsside.
Øvrig: Ytterdørsutførelse (Y95) er CE-merket i henhold til produktstandard for dører EN 14351-1. CE-merket bak på dørbladet viser følgende egenskaper, testet av RISE:
| Vindmotstand | klasse 5A |
| Avgivning av farlige stoffer | godkjent |
| Lydreduksjon | npd* |
| Lufttetthet | klasse 3 |
* No performance determined
Korrosjonsklasse: EN 12944-2 C1-C4 og C5-I.
S95 kan mot bestilling grunnbehandles med sinkepoxy opp til korrosivitetsklasse C5-I – ASI.05 i henhold til EN ISO 12944-5:2007.
Dørblad
Konstruksjon: Dørbladet er dobbeltfalset og består av stålplate med kraftige forsterkninger. Dørbladet er 141 mm tykt.
Materiale: Stålplate, fylt med betong.
Overflatebehandling: Dørene leveres grunnet, men kan på forespørsel grunnes med sinkepoksy opp til korrosjonsklasse C5-I – A5I.05 i henhold til EN ISO 12944-5:2007.
Materiale: Stålplate, fylt med betong.
Overflatebehandling: Dørene leveres grunnet, men kan på forespørsel grunnes med sinkepoksy opp til korrosjonsklasse C5-I – A5I.05 i henhold til EN ISO 12944-5:2007.
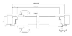
Karm
Konstruksjon: Karmen er laget av 3 mm kaldvalset stålplate med omfattende forsterkninger. Fem faste tapper går i inngrep med karmen når den er lukket. Karmen leveres med beskyttende gerikt på hengslesiden.
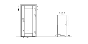
Terskel
Døren leveres med anslagsterskel i stål.
standardbeslag
Lås: Oppfyller RC 5 med kun én lås. Leveres med mekaniske låsekasser som ASSA 510 BL eller Step H50. Døren kan også forberedes for motorlåser, som Step 500-serien, Safetron 6600 eller ASSA 850. For andre godkjente alternativer, ta kontakt Daloc.
Annet: Kulelagerhengsler og fem faste tapper i bakkant.
Annet: Kulelagerhengsler og fem faste tapper i bakkant.
Tilleggsutstyr
Kan leveres klargjort for magnetkontakt, nødutgangsbeslag (ikke panikkutstyr eller bryterkontroll), dørlukkere osv.
For utadgående dører som ikke har noen form for regnbeskyttelse, anbefaler vi å montere en vannavleder på overkanten.
Vi forbeholder oss retten til konstruksjonsendringer.
For utadgående dører som ikke har noen form for regnbeskyttelse, anbefaler vi å montere en vannavleder på overkanten.
Vi forbeholder oss retten til konstruksjonsendringer.






